月租420元起!龍崗區龍城街道昭華里公租房介紹

本期保障房介紹

龍崗區公租房專案昭華里

其地理位置及周邊配套如何呢

跟著小編一起看看吧

目前該專案未開展新配租

僅為房源介紹

昭華里專案簡介

✅專案簡介

本專案位於廣東省深圳市龍崗區龍城街道建設東路50號租房

專案北側靠近龍平路還有興泰實驗學校租房

西側為天健郡城(商品房)租房,靠近長興南路;

東側為御府名築花園(商品房)租房,靠近龍城大道;

南側靠近旺德福廣場和寶能·all city購物中心、龍崗區政府、龍崗文化中心等租房

專案附近有地鐵16號線尚景站和盛平站,步行距離尚景站約560米,步行距離盛平站約550米租房

本次介紹的房源是龍崗公租房專案單身公寓(建築面積約35-40㎡)、無障礙住房(建築面積約43㎡)

月租420元起!龍崗區龍城街道昭華里公租房介紹

✅專案收費標準(僅參考)

⭕配租租金標準租房:12-24元/平方米·月(新政策和原政策租金標準不同)

展開全文

⭕物業管理費為4.3元/平方米·月

⭕專項維修費為0.25元/平方米·月

⭕單套單身公寓每月租金約420元起(面積按35平方米計算)

注:單套房屋租金租房,在租金標準基礎上,考慮樓層、朝向等因素修正確定,最終以合同為準;

物業服務收費按現行標準執行,如有變更,按最新標準執行租房

💡推薦服務租房

【深圳本地寶房源】首頁租房,可查詢深圳保障房房源資訊及申請情況等

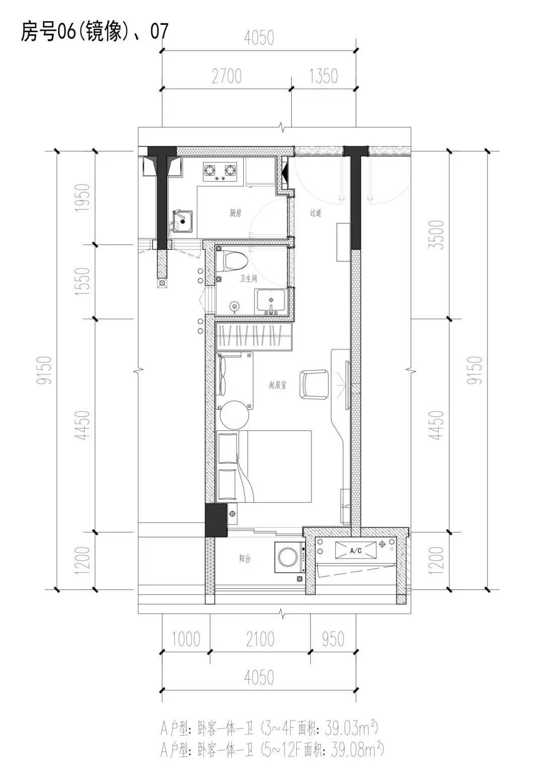
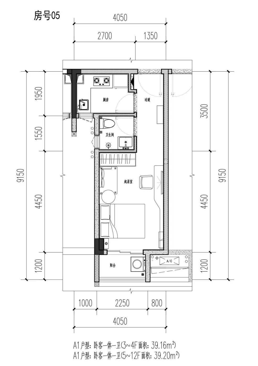
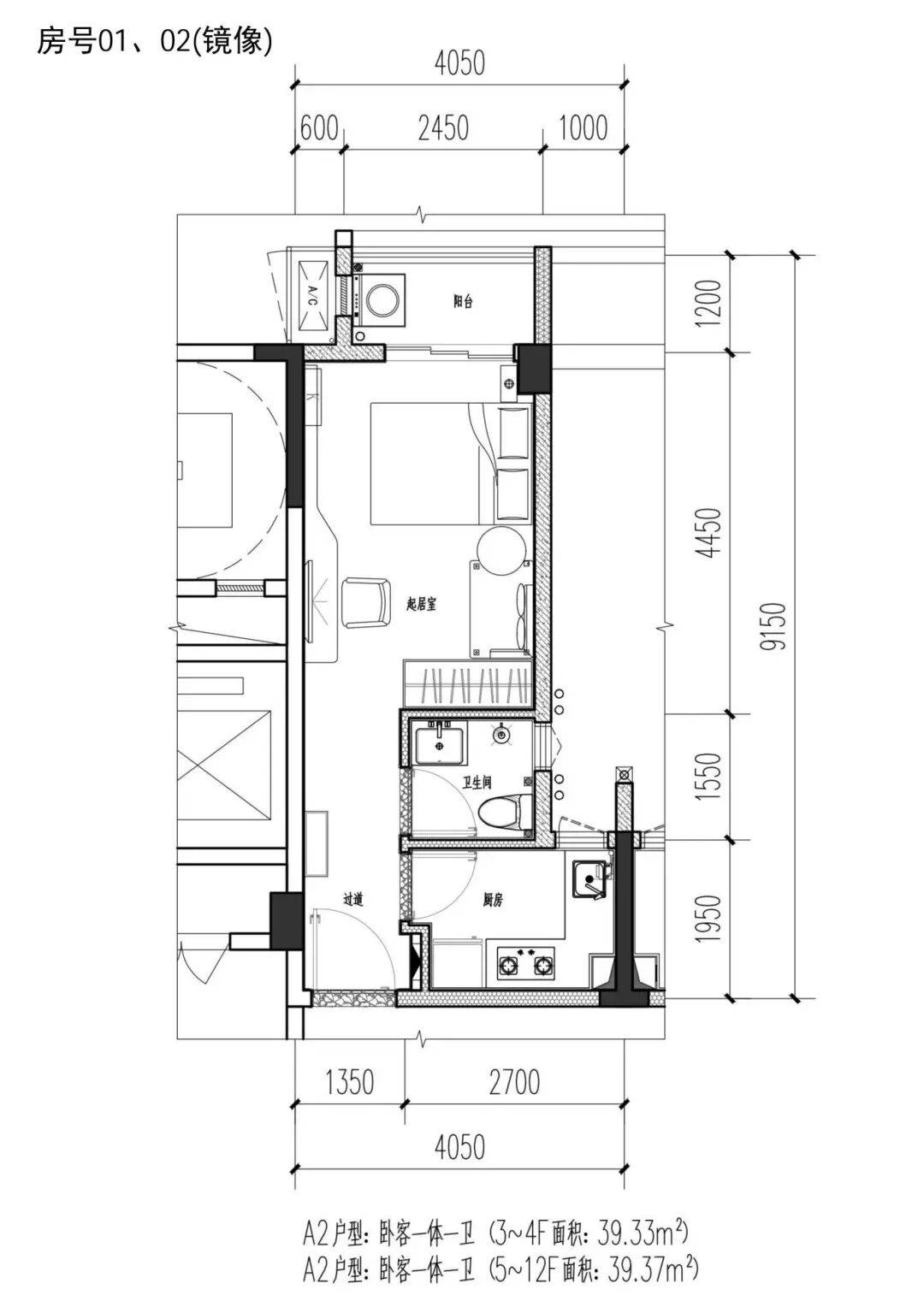
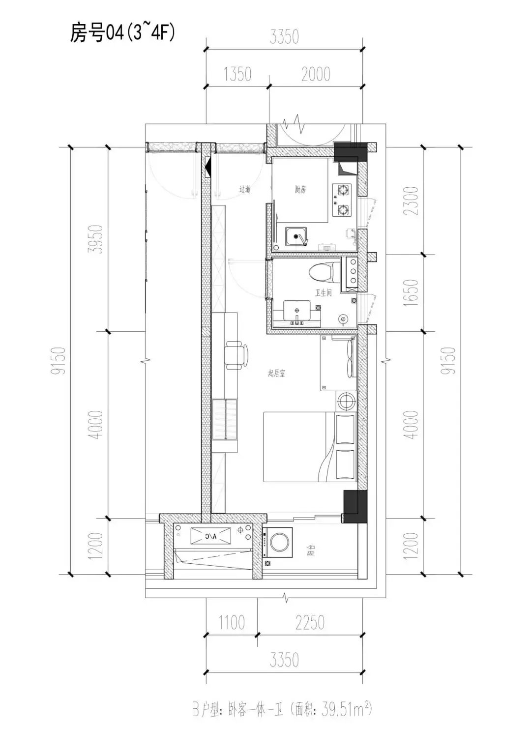
專案戶型圖

✅戶型圖

⭕單身公寓

月租420元起!龍崗區龍城街道昭華里公租房介紹

月租420元起!龍崗區龍城街道昭華里公租房介紹 月租420元起!龍崗區龍城街道昭華里公租房介紹 月租420元起!龍崗區龍城街道昭華里公租房介紹 月租420元起!龍崗區龍城街道昭華里公租房介紹

⭕無障礙住房戶型

(可放大觀看)

圖源租房:龍崗區住房和建設局

交通情況及周邊配套

✅交通情況

本專案北側靠近龍平路、回龍路租房

西側為龍城建設路租房,靠近長興南路和龍崗汽車總站;

東側靠近龍城大道、盛龍路租房

南側靠近松仔嶺二路、龍福路、德政路和龍翔大道等租房

🚉地鐵:距離地鐵16號線尚景站和盛平站,步行距離約560米左右租房

🚌公交租房:專案附近300米左右有

🚏城龍花園-公交站

途徑公交:M276路、M303路租房

🚏天健花園-公交站

358路、M303路租房

🚏城龍花園-公交站

途徑公交:M276路、M303路、高峰專線185路租房

🚏尚景地鐵站-公交站

途徑公交:M306路、M317路租房

具體途徑各站點的公交線路資訊以交通運輸委員會官方網站為準

月租420元起!龍崗區龍城街道昭華里公租房介紹

✅周圍學校

🏫興泰實驗學校

九年一貫制民辦學校租房,距離約231米;

🏫清林小學

公辦小學租房,距離約619米;

🏫龍城小學

公辦小學租房,距離約582米;

🏫深圳中學龍崗學校(集團)蘭著學校

九年一貫制公辦學校租房,距離約1.2公里;

🏫深圳未來雙語學校

九年一貫制公辦學校,距離約1.2公里租房

具體學位情況以龍崗區教育局或承租小區周邊學校釋出的資訊為準

月租420元起!龍崗區龍城街道昭華里公租房介紹

✅周邊商業

位於專案南側約359米有寶能-all city購物中心(龍崗店)租房

距離專案2公里內有龍城萬科裡、天虹商場(龍新店)、龍崗金基吉祥廣場和萬科廣場(深圳龍崗店)等租房

月租420元起!龍崗區龍城街道昭華里公租房介紹

✅附近醫療

🏣深圳市龍崗區人民醫院御府名築社羣健康服務中心

距離專案約138米租房

🏣深圳市龍崗區人民醫院

距離專案約2.1公里租房

🏣深圳龍城醫院

距離專案約3.3公里租房

🏣龍崗區婦幼保健院

距離專案約1.4公里租房

💡推薦服務租房

掃描下方二維碼租房,跳轉【深圳保障房樓盤地圖】首頁, 可直觀查詢房源位置及房源型別等

月租420元起!龍崗區龍城街道昭華里公租房介紹

本站內容來自使用者投稿,如果侵犯了您的權利,請與我們聯絡刪除。聯絡郵箱:[email protected]

本文連結://www.haizhilanhn.com/post/708.html

🌐 /